One-Bedroom Apartment 43m

One-Bedroom Apartment 43m

From a one—room with kitchen apartment to a spacious and modern one-bedroom with an open space living room: how 43 square meters turned into a full-fledged home with a separate bedroom, a recreation area, a workplace, thoughtful storage systems, decorated in a single style.

Maximum from Minimum: Remodeling a 43 m² One-Room + Kitchen Apartment into a One-Bedroom

This project was completed in the Primorsky Quarter Residential Complex in St. Petersburg for a young couple. The goal was to transform a standard one-room and kitchen apartment into a comfortable and functional living space with two fully defined zones: one for privacy and rest, and another for shared living.

A One-Bedroom is a modern apartment layout in which the kitchen, living room, and dining area are combined into one open-plan space, while a separate bedroom is also provided. It’s an efficient and contemporary solution, especially relevant for compact homes and limited budgets.

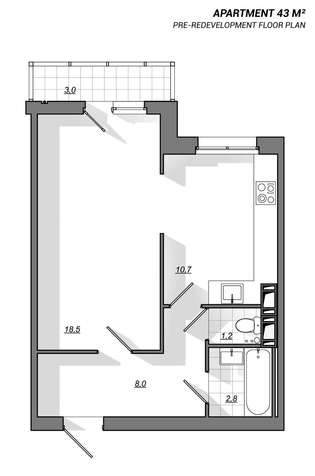
Initial Layout

Initial Conditions and Layout Analysis

  • Apartment size: 43 m²
  • Intended interior style: modern and functional
  • Original type: one-room apartment
  • Target audience: a young couple

We began by evaluating the potential of the original layout. Through furniture placement simulations, it became clear that the existing plan lacked the comfort a couple needs. One area stood out — a narrow, dark corridor taking up 8 m² — a non-functional zone consuming nearly one-fifth of the apartment’s total area.

Planning Solution

We completely reimagined the apartment’s layout with a focus on optimizing every square meter. The main challenge was to convert “dead” space into fully functional living areas.

Key changes:

  • A full-size bedroom of 9.5 m²: It now accommodates a large built-in wardrobe and a cozy dressing nook, offering the privacy and comfort required for rest.
  • Spacious open-plan kitchen-living-dining area (24.2 m²): The former living room and hallway were combined to form a unified, airy social space. Zones are clearly defined, movement flows freely, and the TV area is separated from main walkways. The dining area is comfortably centered — perfect for entertaining or relaxing together.
  • Compact, ergonomic entryway (3.7 m²): Designed with built-in storage and direct, logical access to the main living space.
  • Expanded bathroom (3.8 m²): Enlarged to accommodate a shower and ample storage.
  • Work-from-home office on the balcony (3.0 m²): A practical and secluded space for productive remote work.
  • Built-in laundry storage: A designated cabinet for a washing machine was integrated into the layout.
  • Smart storage systems: Built-in closets and multifunctional furniture throughout the apartment help minimize visual clutter and make the most of the compact footprint.

Frequently Asked Questions

  • Is it legal to move the kitchen into a niche? Yes. This layout adjustment can be legally approved.
  • Do I need to raise the floor because of the sink relocation? No. The 5 cm drainpipe from the sink can be embedded into the floor screed. There’s no need to raise the floor level — this has been verified through calculations and construction documentation.

Results

  • The apartment now features a second, fully usable living space, clearly defined shared and private zones — and officially qualifies as a Euro-Two.
  • Previously wasted 8 m² have been reclaimed for everyday use — roughly $12,000 in market value (based on 2020 prices).
  • Efficient zoning and logical interior routes provide privacy, intuitive circulation, and day-to-day comfort.

Video from the Site During Implementation

Interior Design

The design is executed in a contemporary functional style with elements of Scandinavian aesthetics. This interior is ideal for a young couple or a single person. Thanks to vertical slats, concealed storage systems, and a continuous floor finish (except for the entry area), the relatively compact space feels significantly larger than its actual size.

Kitchen–Dining–Living Area and Hallway

The interior is built on a calm, light base with rich accents. Light gray concrete, white brick, light oak, and a white ceiling are complemented by olive kitchen fronts, a mustard sofa, and emerald green chairs. The textures combine matte surfaces, wood, textiles, and black metal details. The graphic quality of the black hardware unifies the interior.

Lighting is multi-level, designed for different scenarios: recessed spotlights, track systems, wall sconces, and concealed lighting.

  • Kitchen: Compact and functional. Matte olive handleless fronts, a gray retro Smeg refrigerator, and a built-in column with appliances. The backsplash is concrete-look porcelain tile. Behind slatted doors, a utility block with a laundry area is concealed.
  • Dining Area: A compact table with a wooden top on a black base, velvet chairs, and a statement pendant light form a cozy dining group at the junction of the kitchen and living room.
  • Living Room: White decorative brick with soft backlighting, a mustard sofa as the color focal point, a minimalist floating console, and illuminated shelves. Light sheer curtains and full-height gray drapes visually elongate the space.
  • Hallway: 3D-effect tiles visually separate the entry zone from the living area. A floor-to-ceiling mirror with perimeter lighting expands the space. An olive wall-mounted shelf and concealed wardrobes provide storage. A slatted partition with open shelving gently separates the hallway from the living room without blocking light.

Curved Wall

The rounded corner of the partition separating the common area from the bedroom solves several tasks at once.

  • Smooth circulation: In a compact apartment, every centimeter counts. The soft corner makes movement between the hallway, kitchen, and bedroom natural and safe.
  • Visual expansion: The absence of a sharp vertical edge “erases” boundaries, making the space feel more fluid and voluminous.
  • Lighting scenario: Light spreads gently across the curved surface, creating beautiful gradient shadows instead of harsh contrasts.

Bedroom

The 9.5 m² bedroom is designed in a soft, intimate palette. Natural tones and layered lighting create a bright and cozy atmosphere, while concealed lighting and mirrors near the window ensure sufficient daylight even on cloudy days. Built-in furniture includes a spacious storage system and a compact vanity area without overwhelming the space.

  • Color Palette and Finishes: The main accent is the headboard wall, painted in a calm azure-turquoise tone. The remaining walls are white, visually expanding the room. Textiles feature mustard and gray-blue accents. Light wood flooring adds warmth.
  • Furniture and Storage Systems: A double bed with a soft headboard matching the accent wall. A built-in wall-to-wall, floor-to-ceiling wardrobe with white matte fronts and a light wood insert appears almost invisible. By the window — a narrow illuminated niche for books and décor and a wall-mounted vanity with a mirror and terracotta pouf. A minimalist bedside table on tall wooden legs completes the composition.
  • Lighting and Decor: Main lighting — recessed spotlights. Decorative lighting — golden glass pendants above the nightstand and vanity. Windows are dressed with light sheer curtains and blackout gray drapes for comfortable sleep.

Bathroom

We merged the separate bathroom and toilet, fitting all essential fixtures into 3.8 m². The design follows the apartment’s overall concept — a mix of concrete textures, wood, and graphic black accents. Engineering systems are concealed behind false walls, and the washing machine is relocated to a corridor niche behind slatted doors. The result is a clean, calm space dedicated to hygiene and relaxation.

  • Equipment: Corner shower with a matte black rainfall showerhead and glass partition. Concealed installation with a wall-hung toilet and hygienic shower. Vessel sink on a wide wooden countertop over a floating vanity.
  • Aesthetics and Finishes: Walls finished with light beige concrete-look porcelain tile. Mirror and shelves with perimeter LED lighting, and a niche with greenery adding a subtle spa accent. All sanitary ware is in matte black finish.

Loggia

On the 3 m² loggia, we created a mini home office and a relaxation corner. The base of the built-in armchair includes a pull-out drawer for storage.

Summary

This project is a perfect example of how even a compact apartment can be transformed into a modern, practical, and visually pleasant home — with the right professional approach. A modest 43 m² became a fully functional one-bedroom apartment, ideal for two people: featuring privacy, open living space, a home office, and integrated storage systems. We created a space that meets the real needs of modern urban living.

The authors:

Fedor Mironov
Daniyar Gainullin

2020

Ready to transform your apartment?

If your current layout doesn’t meet your needs, and you want to use every square meter as efficiently as possible, we’re here to help you rethink and redesign your space. Maximum function, no compromise on aesthetics.
Book your free consultation — take the first step toward your ideal interior today!

Дизайн двухкомнатной квартиры евро 2 64 кв м в жк Приморский квартал

One-Bedroom Apartment 64m

This project transforms a 64 m² two-room apartment into a thoughtfully redesigned one-bedroom home with a calm, Scandinavian aesthetic. By reworking the inefficient corridor and rethinking the relationship between rooms, we created an open-plan living area, a generous walk-in wardrobe, and improved circulation throughout. The result is a light-filled, functional space designed for the comfortable everyday life of a young couple.

View Project
Design of a 3-bedroom apartment of 90 m2, living room in light beige shades

Three-Bedroom Apartment 90m With Two Children’s Rooms

This project is about how to create a spacious, comfortable and modern house for living from an inefficient layout from a developer.
We took a three-room + kitchen apartment and turned it into a full-fledged three-bedroom apartment with two children’s rooms, a private master bedroom and a large family center.
The interior design is modern with Scandinavian elements. A calm palette, lots of light, natural textures, thoughtful zoning and custom furniture.
The result is an apartment in which every meter works for the comfort of the family, and the space has become bright, logical and inspiring.

View Project
Дизайн гостиной, квартира 89м жк Приморский квартал

Three-Bedroom Apartment 89m With Two Children’s Rooms

From a problematic three-room + kitchen apartment to a spacious three-bedroom.
This project is an example of how thoughtful redevelopment and design turn an uncomfortable apartment into a functional three-room family space.
We have optimized 25% of the area, created a cozy kitchen-living room, added a second children’s room, expanded storage areas and bathrooms.
Modern minimalism with elements of Scandinavian style, a calm palette and thoughtful lighting made 89 m2 comfortable, stylish and ready for life.

View Project
Евротрёшка 61 м, дизайн гостиной

Two-Bedroom Apartment 61m With a Children’s Room

Two-bedroom apartment of 61 m² — maximum comfort for a family with a child.
We turned a standard two-room apartment with an uncomfortable dark hallway and a cramped kitchen into a spacious and bright living space.
The new layout combined the kitchen, dining room and living room into a large family area, allocated the parents’ bedroom with a dressing room and a workplace, created a children’s room with access to the loggia and added a comfortable utility area. The interior style is modern, in a calm natural palette, with wood, soft light and laconic shapes.

View Project
Дизайн интерьера гостиной в евротрёшке 72 кв м

Two-Bedroom Apartment 72m in Scandinavian style

How to turn a standard two-room apartment into a modern two-bedroom with a spacious living room, a master bedroom, a children’s room, and two bathrooms.

View Project
Дизайн квартиры евродвушки 46 кв м в новостройке жк Приморский квартал СПб

One-bedroom apartment 46m

Interior design and redevelopment project of a compact one-bedroom + a kitchen apartment transformed into a modern, comfortable one-bedroom apartment with a spacious kitchen–living room, a separate bedroom, and well-thought-out storage — where every square meter works to improve quality of life.

View Project
Дизайн гостиной, евродвушка 47 кв м

One-Bedroom Apartment 47m for a Bachelor

A functional and stylish interior for a bachelor: from an uncomfortable one-room & kitchen apartment to a thoughtful one-bedroom with a separate bedroom, a spacious kitchen-living room and a work area on the loggia.

View Project
Дизайн 4-комнатной квартиры 90 кв м Евро 4 в Приморском квартале, Санкт-Петербург

Three-bedroom apartment 90m

This project demonstrates how a standard three-room & kitchen apartment of 90 m² can be redesigned into a full-fledged three-bedroom for a family with two children. We achieved a balance of functionality, aesthetics, and coziness by transforming inefficient areas into a comfortable living space.

View Project
Living room, kitchen and hall interior design in a one-bedroom apartment 46 sqm

Compact One-Bedroom Apartment 46м

A 46 m² apartment reimagined from a standard one-room into a modern, functional one-bedroom. Thoughtful zoning, a private bedroom, and a spacious kitchen–living area transformed a compromised layout into a comfortable home for a young couple. Every square meter now works efficiently — balancing coziness, ergonomics, and contemporary style.

View Project
Евротрёшка дизайн интерьера гостиной

2-bedroom apartment 71m for a family with a child

Modern two-bedroom apartment for a young family.
A complete renovation of the 71 m2 two-room apartment has transformed it into a comfortable three-room space with a spacious kitchen-living room, a master bedroom, a children’s room and thoughtful storage systems.

View Project
Minimalist living room interior in a 47 sqm apartment featuring microcement walls, a sofa with a coffee table, a home office area, and a kitchen separated by a partition.

One-Bedroom Apartment 47m For a Student

From a one-room apartment to a one-bedroom.
We have transformed a typical post-soviet 47 m² one-room & kitchen apartment into modern and comfortable housing. Thanks to a thoughtful renovation, there is a spacious kitchen-living room, a private bedroom, a study on the loggia and convenient storage areas. The design – a modern minimalist style, in shades of graphite.

View Project
Дизайн квартиры в жк Приморский квартал

Three-bedroom apartment 92m for a family with two children

A functional and cozy three-bedroom apartment for a family with two children. We have redesigned 92 m², turning an inefficient two-bedroom apartment into a bright and thoughtful space with a spacious kitchen-living room, two children’s rooms, a master bedroom, two bathrooms and a large number of storage systems.

View Project
Kitchen and niche kitchen design in a compact one-bedroom apartment

One-Bedroom Apartment 45m

The compact apartment 45 m² has been transformed from an inconvenient one-room & kitchen into a cozy one-bedroom apartment with a separate bedroom, a spacious kitchen-living room and a study on the loggia. A modern, functional interior for a young couple.

View Project
Дизайн 3-комнатной квартиры Евро-3 62 м2, гостиная

Two-Bedroom apartment 62m for a family with a child

From an inconvenient two-room apartment, there is a comfortable three-room layout and a modern interior for a family with a child.

View Project
Дизайн двухкомнатной квартиры Евро 2 евродвушки 48 кв м, гостиная, Приморский квартал СПб

One-Bedroom Apartment 48m in the minimalist grey style

A former one-room & kitchen apartment transformed into a one-bedroom layout: an open-plan kitchen–dining–living space + a separate bedroom. Style: modern minimalism with a focus on function.

View Project
Дизайн евродвушки 42 кв. м, гостиная

One-bedroom apartment 42m for a young bachelor

One-bedroom apartment, 42 m² — maximum comfort in every square meter. We transformed a typical one-room & kitchen apartment with a dark corridor and confusing circulation into a bright and stylish home for a young bachelor. The new modern layout includes a spacious kitchen–living area, a separate bedroom, a comfortable entry hall, integrated storage systems, and a cozy relaxation corner on the loggia.

View Project