3-комнатная квартира «Евро 3» 91м, жк «Приморский квартал»

3-комнатная квартира «Евро 3» 91м, жк «Приморский квартал»

Перепланировка квартиры из проблемной типовой трёхкомнатной с кухней в современную трёхкомнатную формата «Евро 3»: объединённая кухня‑гостиная, мастер-спальня, детская и продуманные системы хранения — максимум комфорта на 91 м².

Дизайн интерьера трёхкомнатной квартиры Евро 3 91 м², в жк «Приморский квартал», Санкт-Петербург.
Перепланировка трёхкомнатной квартиры в формат «Евро 3» — единое общесемейное пространство (кухня‑столовая‑гостиная) и две приватные комнаты (мастер‑спальня и детская). Дизайн выполнен в современном стиле с элементами скандинавского минимализма, с акцентом на функциональность, комфорт и продуманную организацию хранения.

Задача проекта

  • Устранить неэффективное использование прихожей и коридоров.
  • Получить просторную общую зону для жизни и приёма гостей.
  • Обеспечить две полноценные приватные комнаты для семьи (спальня и детская).
  • Встроенные места хранения и удобная логистика перемещений.

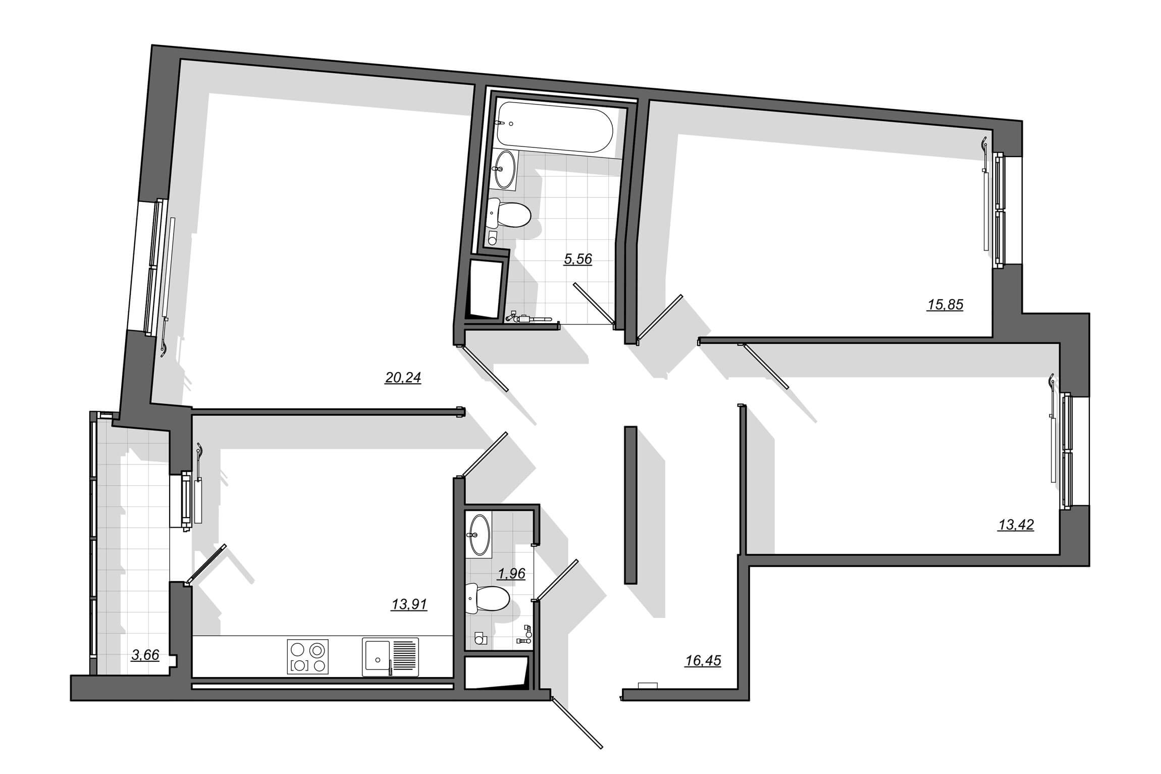
Планировки до и после

Анализ исходной планировки

  • Прихожая 16,45 м² с внутренним делением несущей стеной на два узких коридора — место формально большое по площади, но очень тесное на практике.
  • Гостевой санузел расположен ближе ко входу, создавая тесноту и затрудняя проход вглубь квартиры.
  • Левое крыло: кухня 13,91 м² и комната 20,24 м² разделены перегородкой — по отдельности эти помещения не дают удовлетворительного набора функций (ни полноценной гостиной, ни комфортной столовой).
  • Путь между кухней и комнатой неудобен — через коридор, нарушена логика и комфорт повседневного использования.

Новое планировочное решение

  • Демонтирована перегородка между кухней и соседней комнатой — получено единое общее пространство 34,67 м².
  • Общее пространство логично зонировано: кухня‑ниша, столовая, гостиная с телевизионной и отдельный рабочий уголок на два рабочих места.
  • Гостевой санузел перенесён в дальнюю часть холла — это разгрузило прихожую и освободило проход в гостиную.
  • За счёт перераспределения площади правого коридора расширены мастер‑спальня и детская.

После перепланировки

  • Общее пространство кухни-столовой-гостиной 34.67 м² — угловая кухня-ниша, столовая группа, телевизионная с диваном, рабочее пространство на два рабочих места.
  • Мастер-спальня 16 м² с вместительными местами хранения.
  • Детская 16 м² — с рабочим местом, местами хранения. Всё для жизни, учёбы и отдыха.
  • Прихожая 7.76 м² — оптимальный размер, места хранения, удобных проход в гостиную.
  • Два санузла: основной 5.56 м² с ванной и постирочной, гостевой 1.71 м² с унитазом и раковиной.
  • На лоджии 3.6 м² оборудованы уголок для отдыха и встроенные системы хранения.

Кухня-Столовая-Гостиная

Спальня

Детская

Холл-Прихожая

Основной санузел

Гостевой санузел

Лоджия

В итоге

Этот проект показывает, как грамотная перепланировка и продуманная дизайн‑концепция превращают неэффективную типовую планировку в комфортное жилое пространство. Мы получили светлую и логичную квартиру, где каждая зона отвечает задачам современного семейного быта — от совместных ужинов до продуктивной работы и спокойного отдыха.

Авторы:

Фёдор Миронов
Наталья Стрельцова
Даниэла Ракутундрабеса

2025

Нужен дизайн квартиры?

Хотите увидеть полный пакет рабочих чертежей и подбор материалов для этой квартиры или обсудить похожую перепланировку для вашего жилья?
Оставьте заявку на консультацию!

Дизайн двухкомнатной квартиры евро 2 64 кв м в жк Приморский квартал

Двухкомнатная квартира 64м в жк «Приморский квартал», Санкт-Петербург

Проект дизайна двухкомнатной квартиры (Евро 2) 64 м² в Санкт-Петербурге. Мы полностью разработали планировку, интерьер и решения для хранения с учётом пожеланий Заказчицы. Интерьер выполнен в светлом скандинавском стиле.

Смотреть проект
Дизайн 4-комнатной квартиры 90 м в Евро 4, гостиная в светлых бежевых оттенках

4-комнатная квартира 90м с двумя детскими, жк «Приморский квартал»

Как из неэффективной планировки от застройщика можно создать просторный и комфортный дом для жизни? Мы взяли трёхкомнатную квартиру и превратили её в полноценную четырёхкомнатную с двумя детскими, мастер-спальней и большим семейным центром кухни-гостиной.
Видео после готового ремонта.

Смотреть проект
Дизайн гостиной, квартира 89м жк Приморский квартал

Четырёхкомнатная квартира «Евро 4» 89м с двумя детскими

Из проблемной трёхкомнатной в просторную «Евро 4». Этот проект — пример того, как продуманная перепланировка и дизайн превращают неудобную трёхкомнатную квартиру в функциональное четырёхкомнатное пространство для семьи. Мы оптимизировали 25% площади, создали уютную кухню-гостиную, добавили вторую детскую, расширили зоны хранения и санузлы.
Видео после ремонта «под ключ».

Смотреть проект

Трёхкомнатная квартира 71м в жк «Приморский квартал»

Трансформация двухкомнатной в трёхкомнатную квартиру формата «Евро 3» для семьи с ребёнком. Кухня-гостиная, мастер-спальня, детская, два санузла и вместительная гардеробная. Возвращено к жизни больше 12% от общей площади квартиры. Стиль интерьера — современный, с элементами Ар-деко.

Смотреть проект
Евротрёшка 61 м, дизайн гостиной

3-комнатная квартира «Евро 3» 61м в жк «Приморский квартал»

Трёхкомнатная квартира 61 м² «Евро 3» — максимум комфорта для семьи с ребёнком. Мы превратили стандартную «двушку» тёмным коридором и тесной кухней в просторное и светлое пространство для жизни. Новая планировка создала большую семейную зону, выделила спальню родителей с гардеробной и рабочим местом, создала детскую с выходом на лоджию и добавила удобную хозяйственную.
Видео после ремонта «под ключ».

Смотреть проект
Дизайн интерьера гостиной в евротрёшке 72 кв м

Трёхкомнатная квартира «Евро 3» 72м, жк «Приморский квартал»

Как из стандартной двухкомнатной квартиры создать современную «евротрёшку» с большой кухней-гостиной, спальней родителей, детской, двумя санузлами и гардеробной.

Смотреть проект
Дизайн 3-комнатной квартиры евротрёшки 92м

Трёхкомнатная квартира 92м в жк «Приморский квартал»

Минимализм со скандинавскими акцентами и тщательно продуманная планировка сделали эту трёхкомнатную квартиру площадью 92 м² удобным и гармоничным домом для молодой семьи с ребёнком. В проекте реализованы просторная кухня-гостиная, мастер-спальня с гардеробной и лоджией, уютная детская, три санузла, постирочная, функциональный холл.

Смотреть проект
Дизайн интерьера квартиры евротрёшки 80 кв м в новостройке жк Приморский квартал СПб

3-комнатная квартира 80м в жк «Приморский квартал»

Переосмысленное пространство: из двухкомнатной — в функциональную, современную квартиру формата «Евро 3».

Смотреть проект
Евротрёшка дизайн интерьера гостиной

3-комнатная квартира 71м с детской, жк «Приморский квартал»

Трёхкомнатная квартира «Евро-3» для молодой семьи. Полная перепланировка двухкомнатной квартиры 71 м² превратила её в комфортное пространство с роскошной по площади кухней-столовой-гостиной 32,6 м², мастер-спальней, детской и продуманными системами хранения.
Видеообзор и тур по квартире после ремонта «под ключ».

Смотреть проект
Дизайн трёхкомнатной квартиры 98 м2 евро 3 в Приморском квартале СПб,

3-комнатная квартира 98м в жк «Приморский квартал»

Проект перепланировки и дизайна интерьера двухкомнатной квартиры 98 м² в корпусе-башне ЖК «Приморский квартал» (Санкт-Петербург). Из типовой «двушки» создано просторное и функциональное пространство формата «Евро-3» — с объединённой кухней-гостиной и двумя приватными спальнями.

Смотреть проект
Дизайн 3-комнатной квартиры Евро-3 62 м2, гостиная

Квартира «Евро 3» 62м для семьи с ребёнком, жк «Приморский квартал»

Из неудобной двушки с тёмным коридором — комфортная планировка «Евро 3» и современный интерьер для молодой семьи с ребёнком.

Смотреть проект

3-комнатная квартира «Евро 3» 73м, жк «Приморский квартал»

Квартира преобразована из проблемной двухкомнатной в идеально собранную трёхкомнатную формата «Евро 3» — с отдельной спальней, детской с личным санузлом, уютной кухней-гостиной и кабинетом на лоджии. Скандинавский интерьер, созданный для комфорта и высокого качества жизни молодой семьи.

Смотреть проект